• 93 m2Surface
  • 0 aresTerrain
  • PEB - A
  • 2 Chambre
  • 1 Salle de bain

Demande de renseignements et visite

NON
App. C2 – à Pondrôme (5574), Rue de Wellin n°5/C2

Nous vous présentons ce superbe appartement au sein d’une résidence au style « fermette contemporaine », située à Pondrôme, à seulement 12 minutes de l’E411 (Bruxelles–Luxembourg) et à 5 minutes du centre de Beauraing et de sa gare.

Cet appartement aux finitions soignées offre un cadre de vie lumineux et confortable. Il dispose d’un balcon avec une vue dégagée sur la nature.

Localisation idéale : commerces de proximité et école maternelle et primaire accessibles à pied, ainsi que des arrêts de bus permettant de rejoindre Beauraing et Wellin.

Une attention particulière a été portée à la performance énergétique du bâtiment, grâce à une excellente isolation (PEB A provisoire, généralement constaté en A+).

Avantage fiscal : la quote-part terrain est soumise au droit d’enregistrement (12,5% voire 3% si conditions primo acquéreur respectées) au lieu de 21 %.

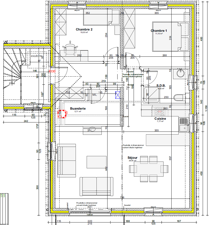
Composition : hall d’entrée, cuisine équipée, séjour, balcon, hall de nuit, WC indépendant, SDD, 2 chambres et buanderie.

Deux emplacements de parking et une cave complètent le bien.

Eléments techniques : chauffage par le sol, 4 panneaux photovoltaïques par appartement, chaudière gaz à condensation.

Appartement vendu clé sur porte : sanitaire, cuisine équipée, carrelage, parquet, aménagements des extérieurs, peinture, raccordements impétrants etc…inclus. Un bien prêt à vivre, pensé pour votre confort et votre tranquillité.

Prix hors frais. Un tableau clair et détaillé des frais annexes, incluant les frais de notaire, la TVA et les droits d’enregistrement, est disponible sur demande ou sur notre site internet en cliquant sur l’encadré « Calcul des frais ».

Garantie de 10 ans sur le bâtiment.

Opportunité idéale pour investisseurs à la recherche d’un bien performant, durable et directement prêt à louer.

Appartement en cours de construction – réception pour fin 2026.

Photos non contractuelles : il s’agit de biens similaires que nous avons réalisés à Arlon et aujourd’hui tous vendus.

  • Les plans
    • plan C2
    • Plan caves

Pondrôme