







Demande de renseignements et visite
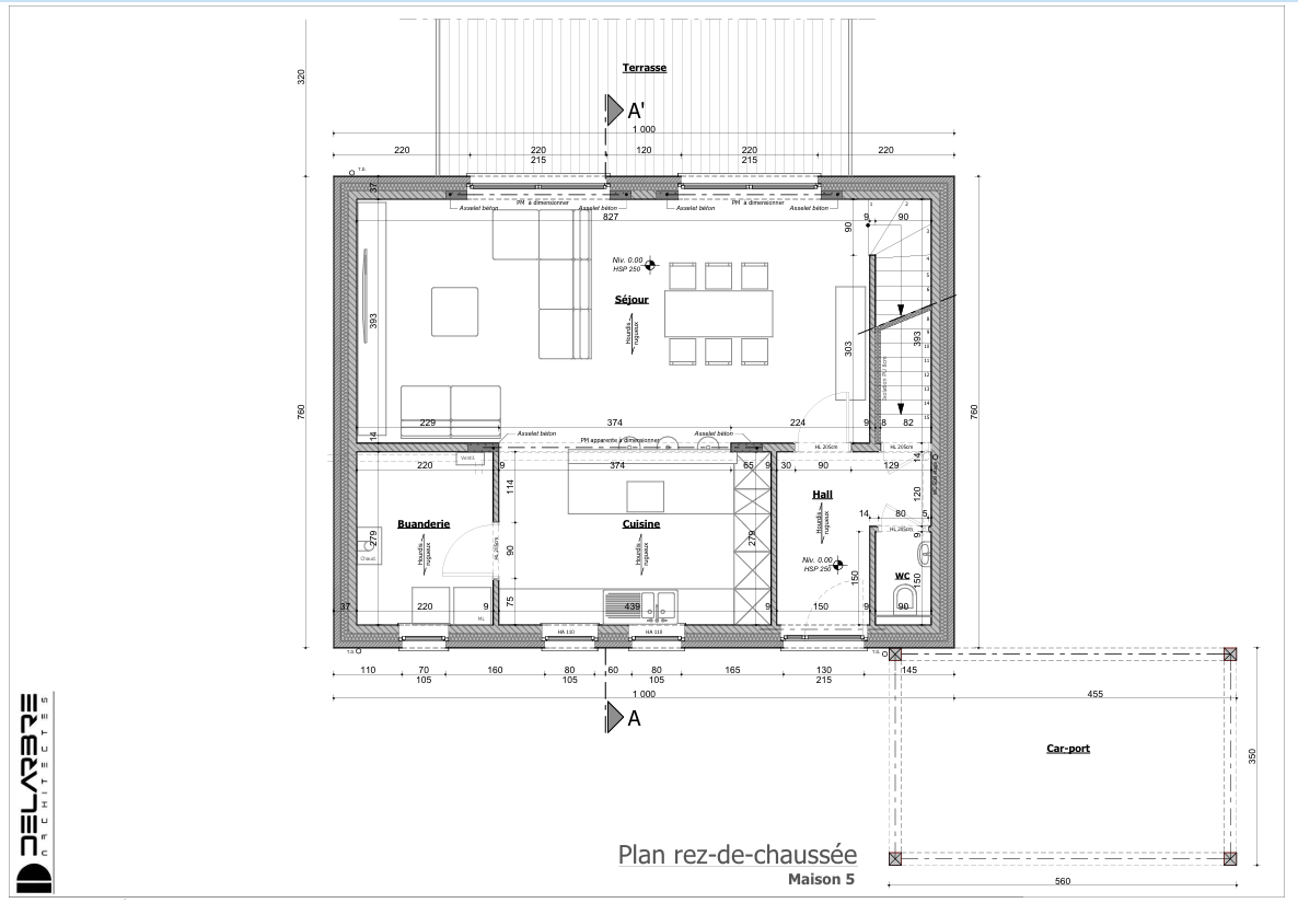
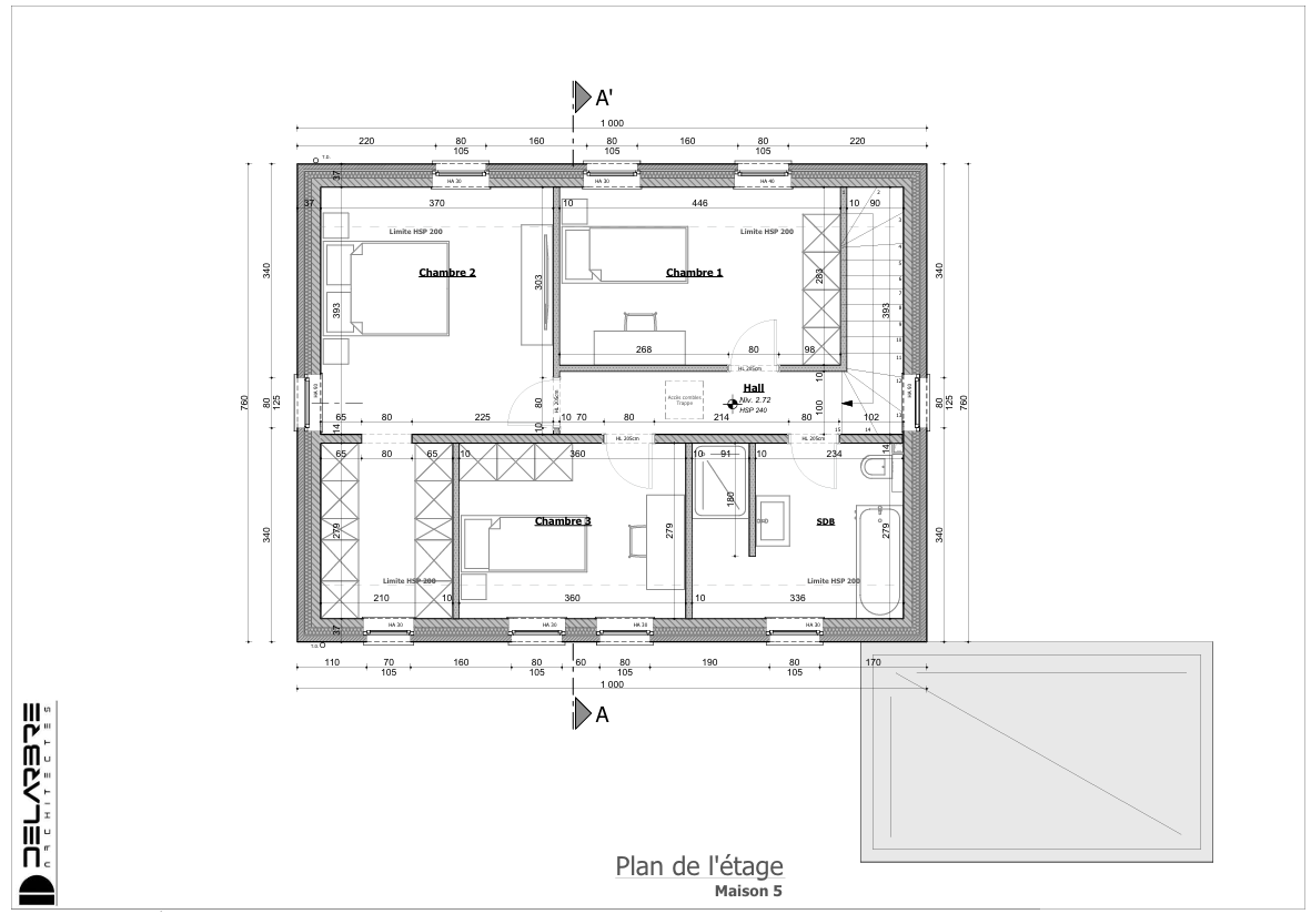
Description
Nous vous proposons cette maison neuve, avec vue incroyable, dans le village de Winenne, située à 5 minutes de Beauraing.
Vous avez la possibilité de choisir les matériaux intérieurs (carrelage, parquet, portes et cuisine) jusqu’à une certaine date d’avancement des travaux.
Maison Q-ZEN ! 10 panneaux photovoltaïques, châssis PVC, chaudière gaz, chauffage sol, citerne eau de pluie 7.500L.
Maison vendue clé sur porte (sanitaire, cuisine équipée, carrelage, parquet, aménagements extérieurs, impétrant, etc…). Le prix comprend également les frais d’architecte, la peinture ainsi qu’un nettoyage de chantier.
Avantage fiscal : la quote-part terrain est soumise au droit d’enregistrement (12,5% voire 3% si conditions primo acquéreur respectées) au lieu de 21 %.
Prix hors frais et carport. Un tableau clair et détaillé des frais annexes, incluant les frais de notaire, la TVA et les droits d’enregistrement, est disponible sur demande ou sur notre site internet en cliquant sur l’encadré « Calcul des frais ».












